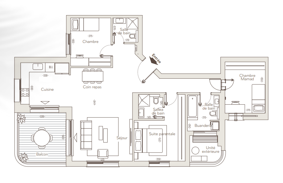
Квартира 4 комнат, 112 кв.м.
Проект Парк Ха-Ям Айленд - Нурит Хирш 1, Бат Ям
Комнаты
4
Площадь застройки
112 м2
Пол
4
Вселение
07.29
Полы здания
20
Размер балкона
12 м2
Очки
Внутренняя площадь
8.1
Внешняя площадь
6.7
Вид
6.3
Область
9.6
Вселение
5.5
Общая оценка
8.6
Описание
דירות מרווחות עם תכנון אדריכלי חדשני, חלונות גדולים שמכניסים אור טבעי ומרפסות פרטיות לרגעי שלווה.
במרחק של כ-600 מטר בלבד חוף ים עוצר נשימה, ובסמוך פארק ירוק.
2 מגדלים / 20 קומות / מועדון לרווחת הדיירים/ חניה ומחסן לכל דירה
לבחירתכם דירות 5-4 חדרים ופנטהאוזים
שטחים משותפים
3 מעליות מעוצבות
לובי כניסה מעוצב
חדר עגלות / אופניים
מועדון לרווחת הדיירים
שוט אשפה לפינוי אשפה קומתי
חדר מחזור להפרדת פסולת אשפה
חניה פרטית לכל דירה
חניון תת קרקעי
הכנת תשתית לטעינת רכבים חשמליים
דירה
מיזוג אויר דירתי מסוג מולטי אינוורטר או מיני VRF לרבות סלוטים בחדר דיור ומטבח (תריסים דקורטיביים).
ריצוף באריחי פורצלן במידות 80/80 ו/או 100/100 ס"מ לבחירת הדייר למעט חדרי רחצה ומרפסות
דלת ביטחון מעוצבת בכניסה לדירה
דלתות פנים איכותיות במספר גוונים לבחירה (כולל גוון לבן) דגם "יוניק" של פנדור או שוו"ע
כנף עץ נוספת לדלת ממ"ד
אינטרקום מסך צבעוני בכניסה לדירה
הפעלה חשמלית בתריסי גלילה (למעט ממ"ד וחדרים רטובים)
זיגוג כפול (למעט ממ"ד וחדרי רחצה)
הכנה לרשתות בחלונות ובוויטרינת הסלון (למעט ממ"ד וחדרי רחצה)
חיבור הדירה לחשמל תלת פאזי- 3X25 אמפר
אביזרי חשמל ותקשורת איכותיים
התקנת בית חכם
מפסק מחליף ביחידת הורים
הכנה לחימום מים בגז
חדר רחצה
אסלות תלויות עם מיכל הדחה סמוי
אמבטיה אקרילית
ארונות אמבטיה עם כיור אינטגרלי ומראה בחדר רחצה כללי + מאסטר הורים
מגוון דגמים לאריחי ריצוף וחיפוי
אינטרפוץ 4 דרך בחדרי רחצה
מטבח
ארונות מטבח הכוללים: ארונות עליונים ותחתונים עם מגירות במנגנון טריקה שקטה, גוף ארון עשוי סנדוויץ'
ברז עם מוט נשלף
משטח עבודה במספר גוונים
נקודת תלת פאזי במטבח עבור כיריים חשמליים
נק' גז
מרפסת דיור
ברז גן במרפסת דיור
ריצוף המרפסת באריחים דמוי דק – אופציה לבחירה
Расположение
לחיות בקרדן איילנד זה למעשה ליהנות מתחושת החופש שתמיד רציתם.
הקרבה לים, הפארק רחב הידיים הסמוך אליכם, הקרבה למוסדות התרבות, החינוך ומוקדי הבילוי של הטיילת הופכים את החיים היומיומיים שלכם לקלים ופשוטים והכי חשוב מהנים יותר.
אז קחו גם חופש גם מהרכב שלכם. כל מה שחלמתם כבר נמצא לידכם.
Подробности
| סוג הנכס | Квартира |
|---|---|
| Город | Бат Ям |
| Улица | Нурит Хирш |
| Район | Парк Ха-Ям |
| Номер дома | 1 |
| סוג הנכס | Квартира |
| Подрядчик / Застройщик | קרדן נדל"ן |
| Тип конструкции | Новый строительный проект |
| מס' קומות בבניין | 20 |
|---|---|
| אכלוס | 1 июл. 2029 г. |
| Количество комнат | 4 |
| Площадь застройки | 112 |
| קומה | 4 |
| מפלסים | 1 |
| מחסן | Да |
|---|---|
| Размер сада | 0 |
| Размер балкона | 12 |
| מס' מרפסות | 1 |
| ממ"ד | Да |
| חניה צמודה | 1 |
Цена
₪3,487,000Телефон
055-948-6538ילנה
Хотите узнать больше подробностей?
Оставьте номер телефона, и мы свяжемся с вами как можно скорее.
Ватсап
Делиться
Сравнивать
אודות היזם קרדן נדל"ן
חברת קרדן נדלן נוסדה בשנת 1988 והיא נמנית על חברות הבנייה והייזום המובילות בישראל.
מקצועיות החברה וניסיונה הרב בפיתוח מתחמי מגורים וביצועם הנו סימן ההיכר של החברה, ועיקר גאוותה הנם עובדיה המסורים והמקצועיים הנותנים שירות ללקוחות החברה מרגע הרכישה דרך ביצוע הפרויקט וכלה בשירות הבדק והאחריות לאחר מסירתה.
מקצועיות החברה וניסיונה הרב בפיתוח מתחמי מגורים וביצועם הנו סימן ההיכר של החברה, ועיקר גאוותה הנם עובדיה המסורים והמקצועיים הנותנים שירות ללקוחות החברה מרגע הרכישה דרך ביצוע הפרויקט וכלה בשירות הבדק והאחריות לאחר מסירתה.
תחבורה
אוטובוס
אגד
מרחק: 54 מ`
קווים: 3
אגד
מרחק: 391 מ`
קווים: 15, 16, 17, 24, 70א, 83
אגד
מרחק: 544 מ`
קווים: 70
דן
מרחק: 1771 מ`
קווים: 142, 18, 242, 418, 46
רכבת קלה
תבל
מרחק: 1092 מ`
קווים: 1, 2
חינוך
גן ילדים
גדי קטן רוצה ח
ממלכתי גילאי 3-5
מרחק: 249 מ`
על ההר ישב ענק
ממלכתי גילאי 3-4
מרחק: 249 מ`
שמוליק קיפוד
ממלכתי גילאי 3-4
מרחק: 395 מ`
איילת מטיילת
ממלכתי גילאי 3-4
מרחק: 430 מ`
חנן הגנן
ממלכתי גיל 5
מרחק: 430 מ`
בית ספר
נוה חוף
מרחק: 518 מ`
חופית
מרחק: 821 מ`
